REHABILITATION LOURDE DE L’ANCIEN TRIBUNAL DE SEMUR-EN-AUXOIS EN ECOLE DE MUSIQUE
MAÎTRISE D’OUVRAGE : COMMUNAUTE DE COMMUNES DE TERRES D’AUXOIS
MAÎTRISE D’ŒUVRE : STUDIO MUSTARD + ELITHIS + BOURGOGNE STRUCTURE + ALLEGRO ACOUSTIQUE
SITE : Ancien Tribunal, Rue de la liberté, SEMUR-EN-AUXOIS (21140)
TYPE DE MISSION : Mission complète de Maîtrise d’oeuvre
DATE : Chantier en cours -Livraison sept 26
MONTANT HT : 1 900 000 € HT
SURFACE : 970 m²
PERFORMANCE : BBC Effilogis + CEP -40%
Chantier en cours, réemploi et techniques traditionnelles.

Les existants, Des bâtiments remaniés autour d’un cloître et un jardin intérieur

Perspectives intérieures, les aménagements tirent partie de la richesse des existants


Plan du rez-de-chausée, accueil, administration, salles de cours individuels et collectives. Le cloître, ouvert sur le jardin, offre un bel espace de déambulation, d’attente et de travail

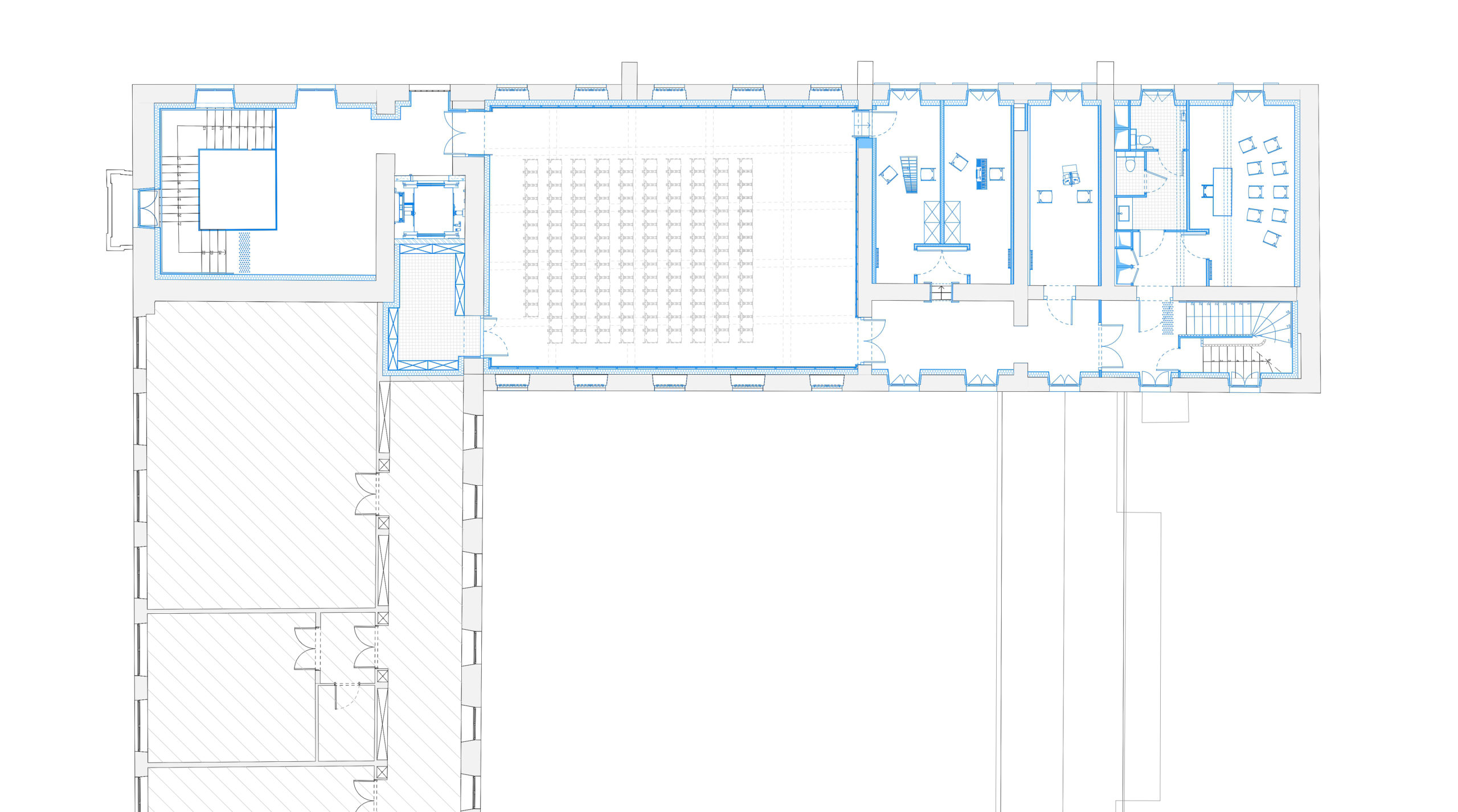
Plan de R+1, salles de cours et auditorium. L’ancienne salle d’audience du tribunal devient salle de concert, de spectacle et de répétition.

Image perspective d’étude de l’Auditorium

Coupe longitudinale sur l’école et l’auditorium

La future Ecole de Musique de Semur-en-Auxois est réalisée en réhabilitation d’un bâtiment emblématique au cœur de la Ville. Le bâtiment, dont certains éléments sont classés, a successivement abrité un couvent, une gendarmerie, une école et un tribunal.
A l’heure ou il est essentiel de réinterroger l’acte de construire, d’économiser nos ressources, de préserver nos sols, de revitaliser nos centres ville et village et d’éviter l’étalement urbain, réhabiliter cet ancien bâtiment, inoccupé depuis des années, prend tout son sens. Notre patrimoine est vivant, il s’adapte, se revitalise en accueillant de nouveaux usages ! Ce bâtiment imposant accueillera maintenant des salles de cours d’instruments, des bureaux, un auditorium, et des espaces plus informels ou réviser ses cours, répéter ensemble, attendre posément…
La pierre, intemporelle, et dont l’inertie est précieuse, le bois brut, noble, autant que possible local, et la laine de bois, isolante et biosourcée, sont les matériaux principaux du projet répondant au référentiel Eifilogis. L’existant est mis en valeur et s’ouvrent sur le cloître, les salles deviennent accueillantes, le confort thermique d’été et d’hiver est assurée.
Un auditorium est créé dans l’ancienne salle d’audience du tribunal. L’acoustique est traitée avec soin : des solutions techniques (panneaux absorbants bois, isolation phonique) sont intégrées de manière invisible, préservant la résonance naturelle des lieux. Le cloître, cœur du projet, est conservé en l’état, avec sa pierre de Bourgogne caractéristique, et transformé en espace de circulation et de rencontre.
L’intervention contemporaine se veut sobre et respectueuse : mobilier, éclairage et signalétique dialoguent avec le bâti ancien, offrant une nouvelle identité au lieu. Ce projet montre comment concilier mémoire, durabilité et usage actuel, en revitalisant le patrimoine rural comme levier de développement culturel et social.
