CONSTRUCTION DE 3 BATIMENTS, NOUVEAUX LOGEMENTS EN ACCESSION, ET EN LOCATIF SOCIAL LE LONG DE L’OUCHE, SUR LE BVD KENNEDY À DIJON. CE PROJET PREND PLACE AU COEUR D’UNE OPERATION PLUS VASTE D’AMENAGEMENT DE SITE ET CONSTRUCTION DE 7 BATIMENTS, REALISÉE CONJOINTEMENT AVEC ARCHIGROUP, MANDATAIRE.
MAÎTRISE D’OUVRAGE : NEXITY
MAÎTRISE D’ŒUVRE : STUDIO MUSTARD, BE CLEMENT, DGET
SITE : ENTRE L’OUCHE, LE BD KENNEDY ET LE BD DU CASTEL A DIJON (21)
TYPE DE MISSION : Mission d’étude (ESQ à DCE)
DATE : Chantier en cours
MONTANT HT : 8 351 564 € HT
SURFACE : 14 723 m²
PERFORMANCE : RE2020
Vue du carrefour entre les boulevards Castel et Kennedy à Dijon. Les bâtiments dialoguent avec le ciel.

Vue depuis les voies ferrées, les bâtiment émergent et font paysage

Les bâtiments s’implantent sur un ancien site Enedis renaturé et aménagé. Ils profitent de l’Ouche, de sa fraîcheur et de sa végétation spécifique.

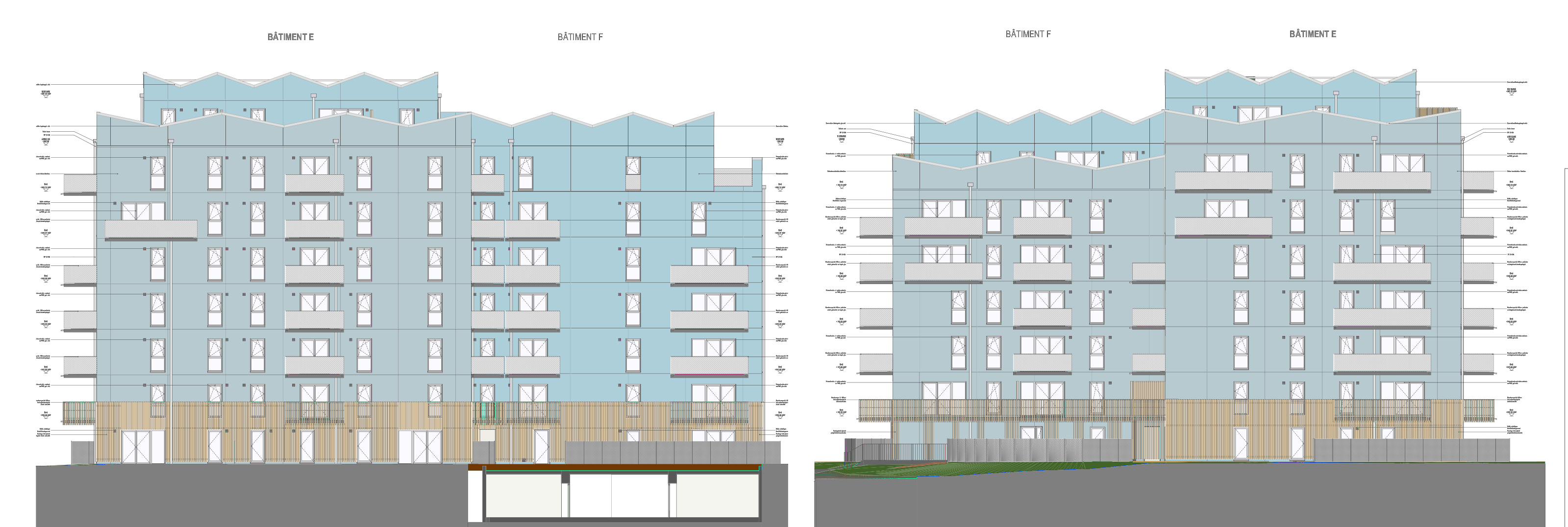
Façades de 2 bâtiments en béton bleu lasuré. Un sous-bassement bardé de bois dans lequel on retrouve loggias, locaux vélo et entrée des bâtiments.


Il y a quelque chose d’enfantin dans ce dessin des volumes : des bâtiments compacts couronnés d’un acrotère penté dialoguent avec le ciel. Ici, on joue des profondeurs des différents volumes et du paysage que vient créer cette skyline singulière.
Les 3 bâtiments, 2 dédiés à du logement locatif social, le 3ème à du logement en accession, prennent place dans une opération plus vaste menée par ARCHIGROUP, en charge des aménagements et de la construction d’autres bâtiments. Libéré par ENEDIS, ce site est à la fois très urbain, au croisement de 2 boulevards passants, à la fois situé le long de l’Ouche. L’aménagement consiste alors à revaloriser la rivière, oubliée en fond de site, de profiter du paysage et de la fraîcheur qu’elle sait offrir. Un parc est réalisé, un ensemble de sentes piétonnes et cycles desservent les bâtiments alors que les véhicules rentrent au plus tôt dans un parking souterrain mutualisé. Les aménagements extérieurs cultivent une atmosphère bucolique : chemins doux, haies champêtres, franges végétales qui adoucissent les abords et ancrent le projet dans une nature vivante et accueillante.
Dans ce site redevenu champêtre, l’implantation des bâtiments joue la carte de la porosité : de larges échappées visuelles, des respirations qui valorisent la présence de la rivière et ouvrent le quartier. Les volumes, en plots, sculptent des transparences et dynamisent l’ensemble. L’architecture reste volontairement simple et devient paysage.
