TECHNOV, CONSTRUCTION HORS SITE D’UN BATIMENT TOTEM DEDIE A LA FILIERE DU NUMERIQUE ET DE LA TECH A DIJON, DANS LE CADRE D’UN CPI AVEC GA SMART BUILDING. UN PROGRAMME PLURIEL PROPOSANT SALLE POLYVALENTE, RESTAURATION, ACCUEIL DU PUBLIC, INCUBATEUR, CO-WORKING, ECOLES DU NUMERIQUE, PLATEAUX TERTIAIRE A DESTINATION DES ENTREPRISES DE LA FILIERE, ROOF-TOP.
MAÎTRISE D’OUVRAGE : D3B POUR DIJON METROPOLE
PROMOTEUR : GA SMART BUILDING
MAÎTRISE D’ŒUVRE : STUDIO MUSTARD Architecture
SITE : ZONE INNOVATION NOVAREA, DIJON (21)
TYPE DE MISSION : CPI – Etudes architecturales + Suivi de conformité archi. du chantier
DATE : Etudes en cours
MONTANT HT : 13 385 000 € HT
SURFACE : 6000 m² SUC

TECHNOV, de jour comme de nuit


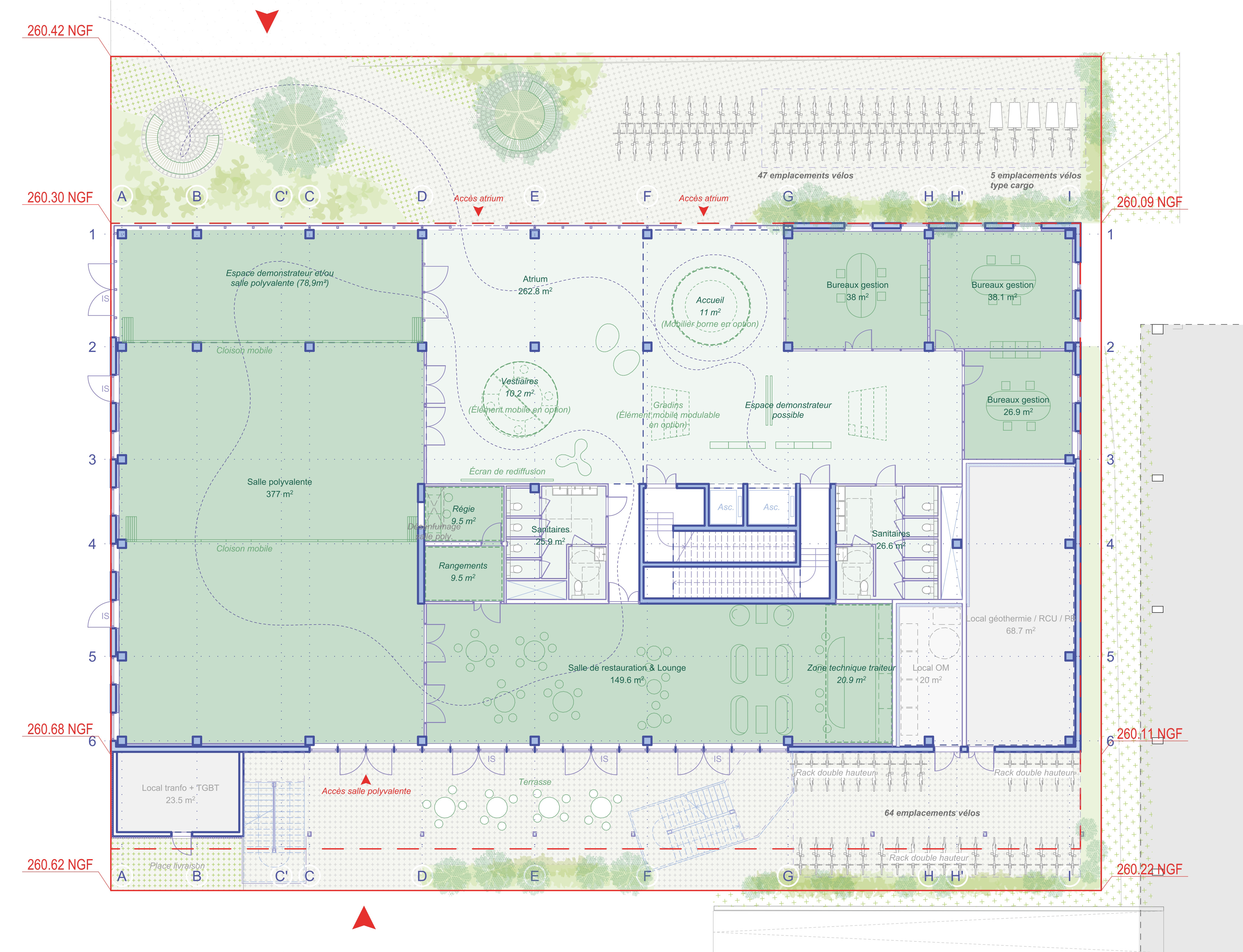
Plan du RDC, un espace modulable permettant l’organisation d’évènements très divers
Le hall, un lieu pour accueillir et se rencontrer, autour de l’innovation, du numérique et de la Tech.

L’entrée du bâtiment et le socle formé par un espace dit Totem, destiné à l’accueil du public
Images @airstudio
TECHNOV est un bâtiment de 6 000 m² dédié au numérique et à la Tech, ayant pour objectif d’accueillir et d’incuber start-up et entreprises, et participer ainsi au renforcement de l’attractivité du territoire. Son programme est pluriel, le bâtiment évolutif et modulable, accueillera des lieux dédiés à l’accueil du public et d’évènements, un incubateur, des plateaux tertiaires modulables, des écoles supérieurs du numériques, un roof-top. Ces différentes fonctions se croisent et s’hybride autour de lieux fédérateur comme le roof-top ou l’atrium pour laisser place à l’échange, croiser les regards autour du numérique et de la Tech.
Lié à l’innovation, ce bâtiment se doit d’être exemplaire. En cela, la proposée par GA SMART BUILDING est un pilier central du projet. Les éléments structurels (poteaux, poutres, dalles, façades) sont préfabriqués en usine, le chantier devient propre, rapide, et moins perturbant pour l’environnement – , des délais réduit de 20 à 30 %, une économie de la matière, une optimisation de la gestion des déchets, valorisés directement en usine. La combine robustesse et légèreté pour réduire l’empreinte carbone. Les intègrent des menuiseries double vitrage alu et des protections solaires pour limiter les besoins énergétiques. L’enveloppe, hautement isolée et dépourvue de ponts thermiques, assure une inertie thermique optimale, maintient un confort intérieur stable été comme hiver. L’énergie est optimisée grâce à un mix vertueux : chauffage et rafraichissement s’appuient sur la .
Le système constructif propose une grande modularité des espaces. Les plateaux, libérés de tout mur porteur grâce à une structure poteaux poutres préfabriquée, offrent une surface de plateaux libre, généreuse, éclairée naturellement : trame de 5,4 mètres en façade, bandeaux vitrés continus, et une « bande active » centrale regroupant circulations, gaines techniques et locaux mutualisés permettent une grande souplesse d’implantation et une évolutivité/réversibilité dans le temps. Cette organisation permet de reconfigurer les espaces sans lourds travaux. Cette réversibilité anticipe l’obsolescence programmatique et prolonge la durée de vie du bâtiment.
TECHNOV porte de fortes ambitions environnementales. Il atteindra le seuil 2025 de la RE2020 et vise la certification HQE Excellent et le label R2S 2 étoiles, garantissant un bâtiment intelligent, sécurisé et connecté.
