GROUPE SCOLAIRE JB LALLEMAND, REHABILITATION ENERGETIQUE ET MISE EN PLACE D’UN PROGRAMME MIXTE AUTOUR DE L’ENFANCE (ECOLE PRIMAIRE ET ELEMENTAIRE, ECOLE DE MUSIQUE, PERISCOLAIRE, EXTRASCOLAIRE, POLE MEDICO-SOCIAL, SESSAD).
MAÎTRISE D’OUVRAGE : VILLE DE DIJON
MAÎTRISE D’ŒUVRE : STUDIO MUSTARD + 3IA + ALLEGRO ACOUSTIQUE + IBAO + BOMA réemploi
SITE : La Fontaine d’Ouche, Dijon
TYPE DE MISSION : Mission complète de Maîtrise d’œuvre
DATE : Démarrage chantier 2eme trimestre 2026
MONTANT HT : 3 600 000 € HT
SURFACE : 1 770m²
PERFORMANCE : RE2020 Objectif 2025, REF EFILOGIS, DEMARCHE TERRAGILIS, MEDAILLE BRONZE !
L’existant, entre la fraîcheur et la biodiversité offertes par le ruisseau, et la minéralité des cours et des terrains de sport

Perspectives du projet. Les bâtiments sont isolés par l’extérieur, les entrées et RDC requalifiés. Le préau et la terrasse qui le surplombe laisse à voir le ruisseau et le couloir de biodiversité qu’il constitue.


Le programme, une transformation de l’école en pôle dédié à l’enfance : une école de musique, un périscolaire, extrascolaire, pôle médico social et SESSAD accompagne les écoles élémentaires et maternelles

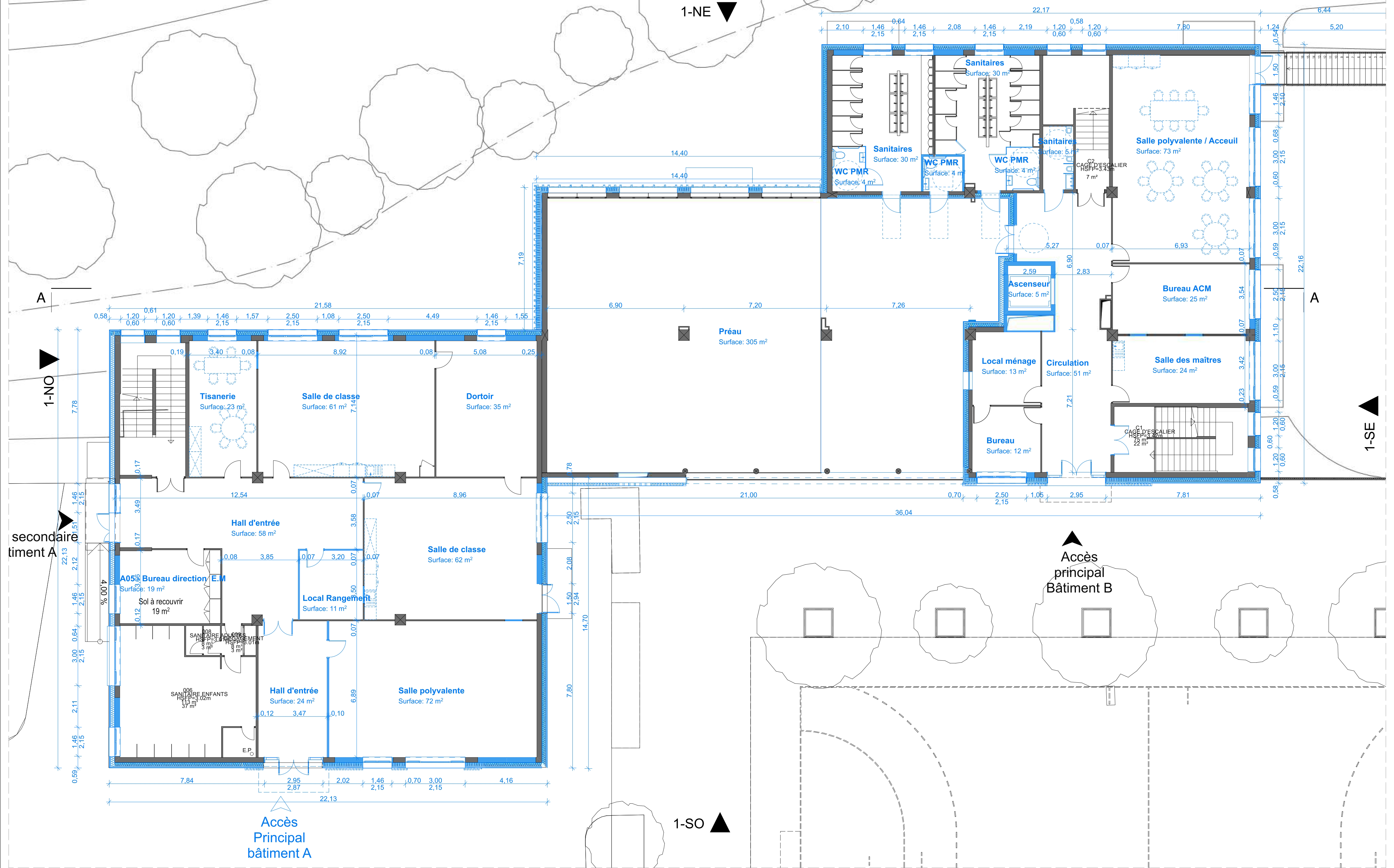
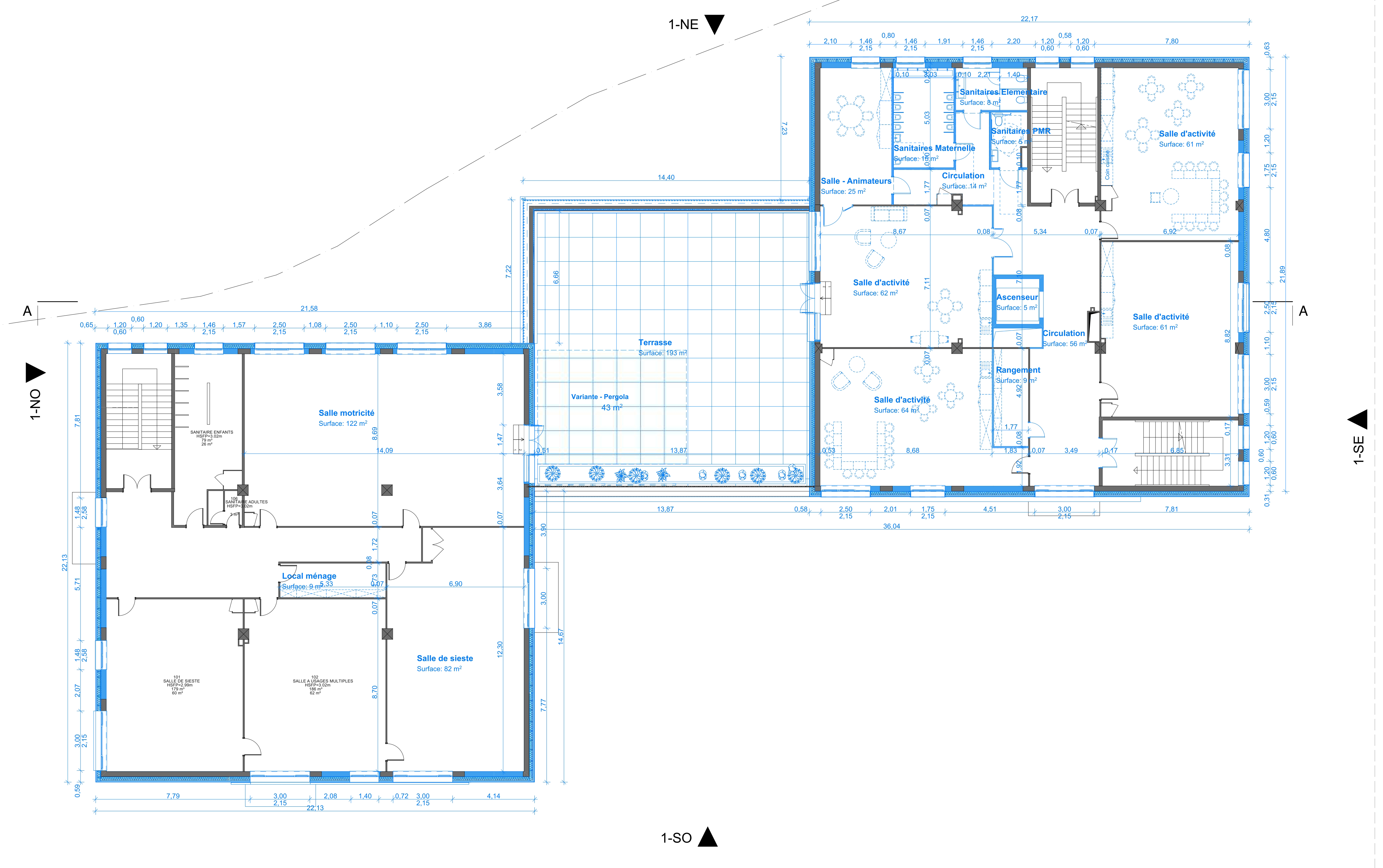
Plan des RDC et 1er étage


Phasage du chantier en site occupé pour perturber le moins possible le fonctionnement du groupe scolaire. 
Le groupe scolaire Jean-Baptiste Lallemand est à ce jour le plus énergivore de la ville. Il est aujourd’hui utilisé à 50%, de nombreuses salles sont vides. L’enjeu de la réhabilitation est double, rendre les bâtiments énergétiquement performant, et engager une réflexion globale à l’échelle du site, pour densifier les usages et optimiser le foncier en regroupant différents programmes autour de l’enfance. Déployé sur 4 650 m², les 3 bâtiments existants réuniront l’école maternelle, l’école élémentaire, le périscolaire, un centre de loisirs, une école de musique, un pôle médico-social, ainsi qu’une maison des associations.
En concertation avec l’ensemble des acteurs, une réflexion autour de la complémentarité des programmes s’instaure et dynamise le projet. Le projet propose des locaux pensés pour chaque entitée tout en proposant des espaces mutualisés, lieux d’interactions.
La réhabilitation énergétique est vertueuse. La laine de bois est utilisée en isolation thermique extérieure, des fenêtres bois-alu sont posées, un bardage de bois peint marque les entrées aux différents équipements. La désimperméabilisation de la cour est prévue dans un second temps.
Le réemploi est au cœur du projet, grâce à un travail fin qui vise à conserver au maximum les existants, complété d’une démarche de réutilisation des matériaux démontés sur site. Les sanitaires, le faux-plafond, les luminaires, quelques vitrages sont réemployés.
Ce projet entre dans la démarche BDBFC (Bâtiment durable Bourgogne Franche-Comté) et atteint aujourd’hui, en phase conception, la médaille Bronze ;D
